熊猫体育,熊猫体育官网,熊猫体育平台,熊猫体育网址

Contact Number
400-8268-006
高压成套柜
PRODUCT

KYN61-40.5铠装移开式交流金属封闭开关设备

概述

KYN61-40.5铠装移开式交流金属封闭开关设备(以下简称开关设备)。其主要特点是柜内配用新型全绝缘真空断路器,柜体采用组装结构,提高了产品外观品质和手车与柜体的配合精度,手车推进拉出十分轻便,保证互换,并能迅速组织生产、装配,及时交货,提高装配所需占地面积的利用率,易于形成批量生产的优点。

可实现闭门操作。其各项正常操作,包括断路器分合闸,断路器手车推到工作位置和退出到试验/隔离位置,以及接地开关的分合闸,都能在断路器室门关闭的条件下进行。

本产品符合:GB3906-20063-35KV交流金属封闭开关设备和控制设备》、GB/11022-2011《高压开关设备和控制设备标准的共用技术要求》、lEC60298:1990《额定电压1kV以上52kV及以下交流金属封闭开关设备和控制设备》标准。本产品用于40.5kV三相交流50Hz电力系统中,做为发电厂、变电所及工矿企业的配电室接受与分配电能之用,具有控制、保护和监测等功能。除广泛用于一般电力系统外,还可使用于频繁操作的场所。使用环境条件符合GB3906335kV交流金属封闭开关设备和控制设备》所规定的正常使用环境条件。

 

型号含义

 

正常使用环境

● 环境温度: -15℃~+40℃;

● 海拔高度: 不超过1000m;

● 空气相对湿度: 日平均值不大于95%,月平均值不大于90%;

● 地震烈度:不超过8度;

● 没有腐蚀性或可燃性气体、水蒸气等明显污染的场所。

:超出上述正常使用条件时,用户可与制造厂协商。

 

技术参数

开关柜主要技术参数

序号

项目

单位

数据

1

额定电压

kV

40.5

2

额定绝缘水平

雷电冲击耐压(全波)

kV

185

工频耐压(1min)

95

3

额定频率

Hz

50

4

额定电流

A

630、1250、1600

5

额定短路开断电流

kA

20、25、31.5

6

额定短路开合电流(峰值)

kA

50、63、80

7

额定峰值耐受电流

kA

50、63、80

8

额定短路耐受电流(4S)

kA

20、25、31.5

9

外壳防护等级

 

IP4X

10

外形尺寸(**)

ZN85-40.5真空断路器

mm

1400x2800x2600 1400x2950x2600

SF6断路器柜

11

重量(断路器柜)

 

2600

其中手车重

六氧化手车

Kg

350

ZN85-40.5真空手车

400

 

断路器主要技术参数

序号

项目

单位

数据

ZN85-40.5

1

额定电压

kV

40.5

2

额定绝缘水平

雷电冲击耐压(全波)

kV

185

工频耐压(1min)

95

3

额定频率

Hz

50

4

额定电流

A

630、1250、1600

5

额定短路开断电流

kA

20、25、31.5

6

额定短路开合电流(峰值)

kA

50、63、80

7

额定峰值耐受电流

kA

50、63、80

8

额定短路耐受电流(4S)

kA

20、25、31.5

9

固定分闸时间

S

≤0.07

10

合闸时间

S

电磁机构≤0.2

弹簧机构≤0.1

11

额定操作顺序

 

-0.3s-合分-180s-合分

12

机械寿命

10000

 

断路器柜一次隔离插头YCT-1600主要技术参数

序号

项目

单位

数据

1

额定电流

A

630、1250、1600

11

接触电阻

μΩ

<50

12

额定允许升温

65

 

结构和工作原理

开关设备结构分为柜体、手车两大部分。柜体结构按功能特征可分为继电器、仪表室、断路器室、电缆室和母线室四部分,各部分以接地的金属隔板分隔。其 外壳防护等级为IP4X;断路器室门打开,断路器手车处于断开/试验位置时防护等级为IP2X。本开关设备具有电缆进出线、架空进出线、母线联络、隔离、电压 互感器、避雷器等一次接线方案。该开关设备采用复合绝缘。主回路采用绝缘母线,相邻柜间用母线套管隔开,能有效地防止事故蔓延,同时对主母线起到辅助支撑作用。电缆室里装有电流互感器,接地开关等,宽裕的空间条件便于多根电缆的连接。

外壳及其他:

柜体采用覆铝锌板或优质冷轧钢板经数控扳金加工成形后,用高强度螺栓螺 母和铆螺母连接而成,构件表面采用喷塑或镀锌工艺;开关设备各功能小室均采用金属隔板封隔,并设有独立的压力释放通道;可配用ZN85-40.5真空断路器,满足不同用户的需求。断路器、接地开关等操作均可在高压室门关闭情况下进行,即可实现关门操作;采用热缩绝缘材料及环氧涂覆的绝缘手段,优化电极结构,使柜体结构紧凑,缩小占地面积:

 

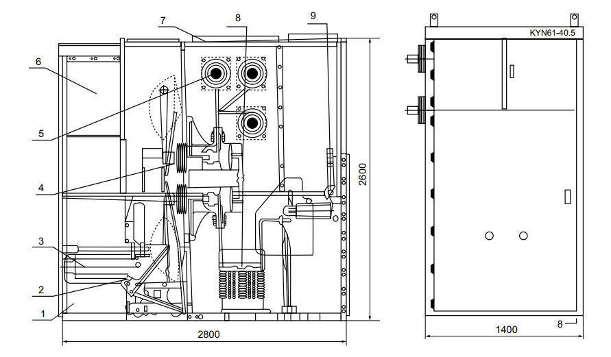
开关设备结构示意图

 

开关设备结构图

1、壳体、 2、活门支架、 3、断路器手车、 4、触头盒、 5、母线套管 6、仪表室、 7、泄压装置 、8、电流互感器、 9、接地开关

 

安装地基图

 

 

注:一次主电缆沟深度系按单根塑料电缆设计,当采用油浸电缆时,电缆沟应适当加深。

 

订货须知

订货时应提供下列资料:

1、主结线方案编号及单线系统图,排列图及平面布置图

2、二次接线图,端子排列图,若无端子排列图则按制造公司端子排列图

3、开关设备的电器元件的型号、规格、数量

4、电气设备汇总表

5、需要母线桥(两列柜间母线桥和墙柜间母线桥)时需提供跨距和高度尺寸

6、开关设备使用在特别环境条件时在订货时提出 7、需要其它或超出规定附件供应时提出种类和数量

 

 

总部
浙江温州柳市中泰科技园
热线:0577-62785777  热线:18957777082 传真:0577-62785777
分部
黑龙江大庆万宝工业园区
电话:0459-6778555  传真:0459-6778666 邮箱:cnzt@auntink.com
扫一扫 关注我
中泰科技公众号
Copyright © 中泰科技 All Rights Reserved.    浙ICP备49433669号-1
熊猫体育