• 熊猫体育,熊猫体育官网,熊猫体育平台,熊猫体育网址

    Contact Number
    400-8268-006
    箱式变电站
    PRODUCT

    ZGS□-12/0.4 组合式变电站(美式)

     

    概述

    ZGS□-12/0.4系列组合式变电站系用于12kV环网供电、双电源供电或终端供电系统中,作为变电、配电、计量、补偿、控制和保护装置。组合式变电站内除装有变压器外,高压侧还装有四工位负荷开关、二工位负荷开关、后备保护熔断器及插入式熔断器;低压侧按用户要求可装配控制电器、配电电器、补偿装置及电能计量表等,以变压器油作为绝缘和灭弧介质。

    本产品是吸收国外先进技术,结合国内实际情况研制开发的。变压器为S10(S11)型,整台产品具有体积小、安装维护简便、低噪音、低损耗、防盗、 过负荷能力强,全保护等特点,适用于新建小区、绿化带、公园、车站、码头、宾馆工地、机场等场所。本产品性能除满足各自元件的有关标准外,还符合GB/ T17467-2010《高压/低压预装式变电站》已通过**认可的试验站**型式试验合格,并通过了省级高新产品鉴定生产许可证。

     

    型号含义

     

    正常使用条件

    周围空气温度:*高温度+40℃,*低温度-30℃;日平均温差;不超过30℃;年平均温差不超过20℃;

    海拔高度:1000m及以下;

    风速:不超过35m/s

    污秽等级:不超过级;

    安装场所:无爆炸危险、化学腐蚀和剧烈振动;安装有水泥平;台或其它平整、坚实的平台上;空气自冷(AN)。

     

    主要技术参数

    整机参数

    序号

    名称

    单位

    高压电器

    变压器

    低压电器

    1

    额定电压

    kV

    7.2/12

    6/0.4、10/0.4

    0.4

    2

    额定容量

    kVA

     

    目字型:200~1250

     

    品字型:50~400

    3

    额定电流

    A

    200~630

     

    100~3000

    4

    额定开断电流

    A

    负荷开关 400~630A

     

    15~63

    kA

    组合电器取决于熔断器

    5

    额定短时耐受电流 (  )

    kA

    20x(2)

    200~400kVA

    15x1

    12.5x(4)

    400kVA

    30x1

    6

    额定峰值耐受电流

    kA

    31.5、50

    200~400kVA

    30

    400kVA

    63

    7

    额定关合电流

    kA

    31.5、50

     

     

    8

    1min 工频耐受电压

    kV

    相对地及相同 32、42

    油浸 : 35/5min

    ≤ 300V  2kV

    隔离断口 38、48

    干式 : 28/5min

    300, 660V  2.5kV

    9

    雷电冲击

    kV

    相对地及相同 60、75

    75

     

    隔离断口 75、85

    75

     

    10

    噪声水平

    dB

     

    油浸 : <55

     

     

    干式 : <65

     

    11

    防护等级

    IP33

    12

    外形尺寸

    根据所选变压器容量和形式,选定不同的外形尺寸

    整机参数

    序号

    项目

    单位

    数值

    四工位负荷开关

    二工位负荷开关

    1

    雷电冲击耐受电压

    对地、相间

    kV

    75

    75

    峰值、全波 )

    隔离断口间

    kV

    85

    85

    2

    1min 工频耐受电压

    对地、相间

    kV

    42

    42

    隔离断口间

    kV

    48

    48

    3

    额定电流

    A

    630

    100

    4

    额定短路关合电流 ( 峰值 )

    kA

    31.5

    16

    5

    额定短时耐受电流

    kA

    12.5

    6.3

    6

    额定短路持续时间

    s

    2

    2

    7

    额定峰值耐受电流

    kA

    31.5

    16

    8

    机械寿命

    2000

    2000

    9

    分、合闸时主断口间的转换时间

    ms

    16~22/15~20

    11~15


    容量 (kVA)

    后备保护熔断器额定电流 (A)/ 开断电流 (A)

    插入式熔断器额定电流 (A)

    100

    40/40

    10

    125

    50/40

    15

    160

    63/40

    25

    200

    80/40

    25

    250

    80/40

    25

    315

    80/40

    25

    400

    100/40

    40

    500

    100/40

    40

    630

    125/40

    65

    800

    175/40

    65

    1000

    200/40

    100


    产品结构特点(原理图见图1、结构图见图2)

    变压器器身与高压开关设备分油箱装配,两者仅电气连接而油相互隔离。带电操作负荷开关产生的电弧只能使负荷开关油箱中的油变黑甚碳化而不影响变压器中油的质量。损耗小、过载能力强。可用于环网供电、双电源供电或终端供电系统中,供电方式转换方便、运行可靠。

    本产品具有缺相保护装置,当缺相时,可自动同时断开变压器的进线负荷开关和低压侧断路器(总开关),也可只断开高压侧负荷开关或低压侧断路器。

     

     

    主要技术参数

    整机参数

    容量 (kVA)

    A

    B

    C

    重量 (kg)

    100

    2000

    1620

    1660

    1560

    125

    2000

    1620

    1660

    1640

    160

    s2000

    1620

    1660

    1720

    200

    2000

    1620

    1700

    1830

    250

    2000

    1620

    1700

    2000

    315

    2000

    1620

    1780

    2200

    400

    2000

    1620

    1780

    2480

    500

    2000

    1620

    1780

    2970

    630

    2000

    1620

    1980

    3490

    800

    2000

    1620

    2060

    3620

    1000

    2000

    1620

    2060

    4650

     

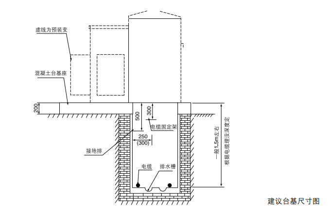
    安装平台

    组合式变电站安装在水平混凝土台面上,台面应保证承受其重量.建议台基尺寸 ( 见下图 )

     

    低压装置

    组合式变电站低压侧具有失压、欠压保护功能,当高压缺相时,低压侧能自动跳闸。按用户要求,低压侧也可装配电电器、控制电器、补偿电器和计量表计等。另外也可加装带有遥测、遥讯功能的配电综合测试仪。下表为典型的低压侧方案。其中可能有您所选用产品需要的方案。如果没有,请与本厂联系。

    序号

    低压二次方案

    简图

    1

    功能

    主计量 ( 总有功电度表、总无功电度表、电压表、三相 电流表 ) 配四路出线断路器

     

    100A~630A

    回路电流

    2

    功能

    主计量 ( 总有功电度表、总无功电度表、电压表、三 相电流表 ) 一路分支有功计量,配四路出线断路器

     

    100A~630A

    回路电流

    3

    功能

    主计量总有功电度表、总无功电度表、电压表、三相电流表)配六路进口熔断器开关

     

    160A、200A、400A、630A

    回路电流

    4

    功能

    主开关、主计量、电压表、三相电流表 )配四路出线断路器

     

    主开关 22**~2500A出线开关 100A~630A

    回路电流

    5

    功能

    主计量 ( 总有功电度表、总无功电度表、电压表、 三相电流表 ) 配四路出线断路器外挂无功补偿柜

     

    100A~630A 无功补偿 100kVAR~200kVAR

    回路电流

    6

    功能

    主计量 ( 配电综合测试仪、电压表、三相电流表 )配四路出线断路器

     

    回路电流

    100A~630A

     

    总部
    浙江温州柳市中泰科技园
    热线:0577-62785777  热线:18957777082 传真:0577-62785777
    分部
    黑龙江大庆万宝工业园区
    电话:0459-6778555  传真:0459-6778666 邮箱:cnzt@auntink.com
    扫一扫 关注我
    中泰科技公众号
    Copyright © 中泰科技 All Rights Reserved.    浙ICP备49433669号-1
    熊猫体育