|
概述 ZTGT-12系列是新一代固体绝缘环网柜,具有高水平的运行**性,应用于配电网中作为配电网的核心单元。该设备主要由模块化元件如断路器本体、负荷开关本体、熔丝筒、绝缘母线和可触摸电缆接头构成。所有高压带电部分均用绝缘特性优良的环氧树脂材料浇注成型、真空灭弧室、主导电回路、绝缘支撑等**结合为一整体,实现全绝缘、全密封、免维护结构。同时也极大地减少了开关相间绝缘间隙,相于相隔离,**避免了相间短路故障。每一回路通过三个独立观察窗观察三相隔离开关的位置状态,保证了运行检修维护的**。 真空断路器采用简单可靠的弹簧结构,旋钮分、合闸;负荷开关采用的机构特点是旋钮分闸,防误分手柄操作式合闸。同时具有先进的永磁操作机构供选择。ZTGT-12系列固体绝缘环网柜内配置**在线监测系统,实时监测开关柜内关键部位状态,获取状态参数,自动判断故障发生的可能性,为开关柜以及整 个配电线路的正常运行提供有力保障。产品符合标准GB 1984-2014、GB 3906-2006、GB 1985-2014、GB 3804-2017、GB 16926-2009、GB/T 11022-2011、IEC 60529。 适用于各种配电系统-包括极端恶劣的环境条件下,例如:变电站:用户变电站,电力系统和公共设施的变电站和开闭所。工业领域:风力发电站、高层建筑、机场、露天开采煤矿、地铁站、污水处理厂、港口设施、牵引供电系统、汽车工业、石油工业、化学工业、水泥工业、热力厂、纺织业、造纸业和应急供电系统 |
|
型号含义
正常使用环境 ●海拔高度不超过4000米; ●环境温度:-40℃~+80℃; ●凝露/湿度:IEC60721>3k6和3Z7级; ●化学品/污染:IEC60721>3C2级; ●灰尘:IEC60721>3S2级。 |
|
使用** ● 一次部件**采用固体绝缘,外层屏蔽、表面零电位,可**碰触; ● 单相固体绝缘,避免相间短路; ● 优化的电动机构; ● 通过前面板观察窗实现隔离断口可视; ● 完善的机械及电气互锁,有效避免误操作。 绿色** ● 不适用SF6气体作为灭弧及绝缘; ● 断路器、隔离、接地功能“3 合一”集成设计,*精简; ● 一次回路采用*少的接点设计,确保运行期间低能耗; ● **采用**性材料设计。 |
|
使用便捷 ● 模块化设计,可根据客户需求,任意组合; ● 电缆接线及用户操作界面均位于柜体前端,方便运行维护; ● 电缆安装空间大,便于安装; ● 操作面板清晰、简单易懂; ● 免维护,总成本低; ● 柜体设计紧凑,不同柜型的柜距仅为439mm,节省空间; ● 采用长寿命的固体绝缘材料作为绝缘介质; ● 采用免维护的真空断路器或真空负荷开关; ● 一次部件与机构内置于**封闭的全密封箱体内; ● 无需SF6压力检查。 **化设计 ● 先进的保护、控制和监测功能; ● 易实现配网自动化,为**电网做好准备。 |
|
序号 |
项目 |
单位 |
数值 |
|
1 |
额定电压 |
kV |
12 |
|
2 |
额定频率 |
Hz |
50 |
|
3 |
工频耐压 |
kV/min |
42/48 |
|
4 |
雷电冲击电压 |
kV |
75/85 |
|
5 |
燃弧持续时间 |
s |
≥ 0.5 |
|
6 |
一次部件防护等级 ( 计量柜除外 ) |
|
IP67 |
|
7 |
柜体防护等级 |
|
IP4X |
|
8 |
隔室间防护等级 |
|
IP2X |
|
9 |
操作电源电压 |
V |
DC:24、48、110、220 AC:110、220 |
|
序号 |
项目 |
单位 |
数值 |
|
1 |
额定电压 |
kV |
12 |
|
2 |
额定频率 |
Hz |
50 |
|
9 |
操作电源电压 |
V |
DC:24、48、110、220 AC:110、220 |
|
序号 |
项目 |
单位 |
数值 |
|
1 |
额定电压 |
kV |
12 |
|
2 |
额定频率 |
Hz |
50 |
|
|
|
|
|
|
|
|
|
|
|
|
|
|
|
|
9 |
操作电源电压 |
V |
DC:24、48、110、220 AC:110、220 |
|
序号 |
项目 |
单位 |
数值 |
|
1 |
额定电压 |
kV |
12 |
|
2 |
额定频率 |
Hz |
50 |
|
|
|
|
|
|
|
|
|
|
|
|
|
|
|
|
|
|
|
|
|
|
|
|
|
|
9 |
操作电源电压 |
V |
DC:24、48、110、220 AC:110、220 |
|
序号 |
项目 |
单位 |
数值 |
|
1 |
额定电压 |
kV |
12 |
|
2 |
额定频率 |
Hz |
50 |
注:1、负荷开关-熔断器组合电器单元的额定电流取决于熔断器。
2、负荷开关-熔断器组合电器单元的额定短路开断电流受限于高压熔断器。
|
|
|
真空灭弧室及固体绝缘 一次部件周围采用高品质的环氧树脂作为主绝缘材料。我们的设计师可根据需要模块化设计各个部件,以便获得*佳的绝缘性能、坚固的结构及冷却性能。清畅拥有丰富的固体绝缘产品设计及制造经验,我们掌握如何构造小型化的单项绝缘技术。ZTGT-12 全封闭固体绝缘金属环网开关设备通过对所有一次部件进行特殊的设计,很好的优化了电场。真空断路器或负荷开关采用简单可靠的弹簧机构或先进的永磁机构。机构包含少量的运动部件,并置于封闭的全密封箱体内,减少了外界环境的变化对机构的影响。 特点: ● 采用**的真空灭弧室技术 ● 简洁的弹簧储能机构 ● 手动或电动操作或永磁操作可选 ● 同时提供清晰的机械位置指示及可视观察窗 ● 可提供分/合闸辅助位置接点 |
|
|
|
|
|
|
|
直动式三工位隔离开关 所有带开关柜型均配备直动式三工位隔离开关,三工位隔离开关与主开关一同内置于封闭的环氧树脂箱体内。它具备三相主轴,可操作实现投运/隔离/接地三个位置。由于三工位隔离开关采用了机械联锁,只有在主开关处于断开位置时,三工位隔离开关才能打开操作孔进行操作。 特点: ● 开关采用手动操作,具有三工位(投运/隔离/接地) ● 内置于封闭的**密封箱内 ● 可提供投运/隔离/接地的辅助位置接点 ● 同时提供机械位置指示及通过观察窗实现断口可视 ● 与主开关实现机械联锁 ● 单项固体绝缘 |
|
|
|
|
|
|
|
负荷开关-熔断器组合电器 针对小容量负载的熔丝保护需求,我公司开发了**、可靠的紧凑型负荷开关-熔断器组合电器单元。组合电器单元结合了清畅高性能真空灭弧室的优点及固体绝缘熔丝筒的紧凑型设计,保护适用范围更广泛,并且能够实现更换熔丝时熔丝的上下两端同时接地,保证了人员**。 特点: ● 紧凑型单相固体绝缘熔丝筒技术 ● 更换熔丝时熔丝的上下两端能同时接地,更换**可靠 ● 3150A交接电流 |
|
方案编号 |
001 |
002 |
003 |
004 |
|
一次方案图 |
|
|
|
|
|
主开关型号 |
|
ZTGT □ -12/630 |
ZTGT □ -12/630-20 |
ZTGT □ -12R/200-50 |
|
开关单元名称 |
空间隔单元 |
负荷开关单元 |
断路器单元 |
负荷开关 - 熔断器 组合电气单元 |
|
绝缘母线 |
■ |
■ |
■ |
■ |
|
高压熔断器 |
|
|
|
□ |
|
电缆式 / 套管式电流互感 (10P10 级 ) |
|
|
■ |
|
|
电缆式 / 套管式电流互感 (0.5 级 ) |
□ |
□ |
□ |
□ |
|
块状电流互感器 |
|
|
|
|
|
零序电流互感器 |
|
|
□ |
|
|
全绝缘电压互感器 |
|
|
|
|
|
块状电压互感器 |
|
|
|
|
|
避雷器 |
□ |
□ |
□ |
□ |
|
带电显示器 |
■ |
■ |
■ |
■ |
|
故障指示器 ( 只能选择其中一种 ) |
||||
|
FCI-IV 型 ( 面板型,短路、 接地故障指示 ) |
□ |
□ |
□ |
□ |
|
FCI-IIB 型 ( 电缆型,短路 故障指示 ) |
□ |
□ |
□ |
□ |
|
操作机构 ( 只能选择其中一种 ) |
||||
|
弹簧操作机构 |
□ |
□ |
□ |
□ |
|
永磁操作机构 |
□ |
□ |
□ |
□ |
|
保护装置 ( 只能选择其中一种 ) |
||||
|
QBZ-IA 型 ( 有源型、过流、 速断、零序保护 ) |
|
|
□ |
|
|
QBZ-IA 型 ( 无源型、由一 只 0.5 级 CT 供电、过流、 速断、零序保护 ) |
|
|
□ |
|
|
测量表计 ( 只能选择其中一种 ) |
||||
|
三相数显电流表 |
□ |
□ |
□ |
□ |
|
指针型电流表 |
□ |
□ |
□ |
□ |
|
辅助触点 |
|
□ |
□ |
□ |
|
温室传感器及加热器 |
□ |
□ |
□ |
□ |
|
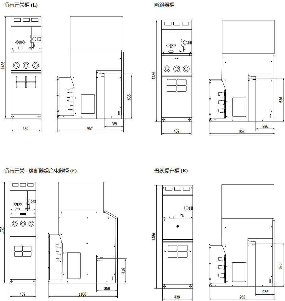
参考尺寸 |
439x62x1486 |
439x62x1486 |
439x62x1486 |
439x1186x1720 |
■ 标准配置 □可选配置 ( 更多可选配置请和市场联系 )
配置保护装置、测量仪表需要在单元柜上方增加二次仪表室 ( 参考尺寸:宽 439x 深 300x 高 400); 如考虑预留配网自动化,请提供预留空间尺寸。
|
方案编号 |
005 |
006 |
007 |
008 |
009 |
|
一次方案图 |
|
|
|
|
|
|
主开关型号 |
ZTGT □ -12/630-20 |
ZTGT □ -12/630 |
ZTGT □ -12/630 |
ZTGT □ -12/630-20 |
ZTGT □ -12/630 |
|
开关单元名称 |
断路器后进线单元 |
隔离开关单元 |
母线提升单元 |
断路器联络单眼 |
负荷开关 |
|
绝缘母线 |
■ |
■ |
■ |
■ |
■ |
|
高压熔断器 |
|
|
|
|
|
|
电缆式 / 套管式电流互感 (10P10 级 ) |
■ |
|
■ |
|
|
|
块状电流互感器 |
|
|
|
|
|
|
零序电流互感器 |
|
|
|
□ |
|
|
全绝缘电压互感器 |
|
|
|
|
|
|
块状电压互感器 |
|
|
|
|
|
|
避雷器 |
□ |
□ |
□ |
□ |
□ |
|
带电显示器 |
■ |
■ |
■ |
■ |
■ |
|
故障指示器 ( 只能选择其中一种 ) |
|||||
|
FCI-IV 型 ( 面板型,短路、 接地故障指示 ) |
|
|
|
|
|
|
FCI-IIB 型 ( 电缆型,短路 故障指示 ) |
|
|
|
|
|
|
操作机构 ( 只能选择其中一种 ) |
|||||
|
弹簧操作机构 |
□ |
□ |
□ |
□ |
□ |
|
永磁操作机构 |
□ |
□ |
□ |
□ |
□ |
|
保护装置 ( 只能选择其中一种 ) |
|||||
|
QBZ-IA 型 ( 有源型、过流、 速断、零序保护 ) |
|
|
|
□ |
|
|
QBZ-IA 型 ( 无源型、由一 只 0.5 级 CT 供电、过流、 速断、零序保护 ) |
|
|
|
□ |
|
|
测量表计 ( 只能选择其中一种 ) |
|||||
|
三相数显电流表 |
□ |
□ |
□ |
□ |
□ |
|
指针型电流表 |
□ |
□ |
□ |
□ |
□ |
|
辅助触点 |
|
|
|
□ |
□ |
|
温室传感器及加热器 |
□ |
□ |
□ |
□ |
□ |
|
参考尺寸 |
439x62x1486 |
439x62x1486 |
439x62x1486 |
439x62x1486 |
439x62x1486 |
■标准配置 □可选配置 ( 更多可选配置请和市场联系 )
配置保护装置、测量仪表需要在单元柜上方增加二次仪表室 ( 参考尺寸:宽 439x 深 300x 高 400); 如考虑预留配网自动化,请提供预留空间尺寸。
|
方案编号 |
010 |
011 |
012 |
013 |
|
一次方案图 |
|
|
|
|
|
主开关型号 |
ZTGT □ -12/630 |
|
|
|
|
开关单元名称 |
PT 单元 ( 带隔离开关 ) |
PT 单元 |
计量单元 |
计量单元 |
|
绝缘母线 |
■ |
■ |
■ |
■ |
|
高压熔断器 |
|
|
|
□ |
|
电缆式 / 套管式电流互感 (10P10 级 ) |
|
|
■ |
|
|
电缆式 / 套管式电流互感 (0.5 级 ) |
|
|
|
|
|
块状电流互感器 |
|
|
|
■ |
|
零序电流互感器 |
|
|
■ |
|
|
全绝缘电压互感器 |
■ |
■ |
|
■ |
|
块状电压互感器 |
|
|
■ |
|
|
避雷器 |
|
|
|
|
|
带电显示器 |
□ |
□ |
□ |
□ |
|
故障指示器 ( 只能选择其中一种 ) |
||||
|
FCI-IV 型 ( 面板型,短路、 接地故障指示 ) |
□ |
□ |
□ |
□ |
|
FCI-IIB 型 ( 电缆型,短路 故障指示 ) |
□ |
□ |
□ |
□ |
|
操作机构 ( 只能选择其中一种 ) |
||||
|
弹簧操作机构 |
□ |
□ |
□ |
□ |
|
永磁操作机构 |
□ |
□ |
□ |
□ |
|
保护装置 ( 只能选择其中一种 ) |
||||
|
QBZ-IA 型 ( 有源型、过流、 速断、零序保护 ) |
|
|
|
|
|
QBZ-IA 型 ( 无源型、由一 只 0.5 级 CT 供电、过流、 速断、零序保护 ) |
|
|
|
|
|
测量表计 ( 只能选择其中一种 ) |
||||
|
三相数显电流表 |
□ |
□ |
□ |
□ |
|
指针型电流表 |
□ |
□ |
□ |
□ |
|
辅助触点 |
|
|
|
|
|
温室传感器及加热器 |
□ |
□ |
□ |
□ |
|
参考尺寸 |
439x62x1486 |
439x62x1486 |
439x62x1486 |
439x62x1486 |
■ 标准配置 □可选配置 ( 更多可选配置请和市场联系 )
配置保护装置、测量仪表需要在单元柜上方增加二次仪表室 ( 参考尺寸:宽 439x 深 300x 高 400); 如考虑预留配网自动化,请提供预留空间尺寸。