熊猫体育,熊猫体育官网,熊猫体育平台,熊猫体育网址

Contact Number
400-8268-006
高低压电缆分支箱
PRODUCT

DFW-12 欧式电缆分支箱

 

概述

欧式电缆分支箱是近年来广泛用于电力配网系统中的电缆化工程设备,它的主要特点是双向开门、利用对接套管作为连接母排, 具有长度小、电缆排列清楚、三芯电缆不需大跨度交叉等显著优点。其所采用的电缆接头符合DIN47636标准。一般采用额定电流630A螺栓固定连接式电缆接头。

执行标准

环境温度:*高气温:+40℃,*低气温-30℃

风速:相当34m/s (不大于700Pa

湿度:日相对湿度平均值不大于95%月相对湿度平均值不大于95%

防震:水平加速度不大于0.4m/s2,垂直加速度不大于0.15m/s2

安装地点倾斜度:不大于3。

安装环境:周围空气应不受腐蚀性、可燃性气体、水蒸气等明显污染,安装地占无剧烈震动。

订购本产品超出上述条件规定时,请与本公司协商。

 

型号含义

 

主要技术参数

额定电压

12kV

额定电流

630A

动稳定电流

50kA/0.3s

热稳定电流

20kA/3s

分钟工频耐压

42kV

15 分钟直流耐压

52kV

雷电冲击耐压

105kV

箱体防护等级

IP33

 

结构说明

1、上侧门 2、套管支架 3、电缆终端头 4、下箱体 5、电缆

 

 

DFW-12欧式电缆分支箱系户外设计、全密封结构、全绝缘、防尘、防潮、抗洪水、耐腐蚀、环境适应性强。柜体防护等级达IP33。电缆接头支架采用不锈钢材料,外壳采用不锈钢板或冷轧板喷涂制造。

电缆接头支架位于分接箱的上部,用来支撑套管,套管则用来固定电缆接头,如果是带避雷器,避雷器安装在电缆接头的末端。 另外,短路故障指示器和带电显示器 也装在分接箱内。箱内所有主回路带电部件由预制插入式电缆终端头绝缘处理。电缆隔板位于箱体下部,有电缆固定夹和接地端子。箱体布局合理,体积小,结构紧凑,外形美观大方,安装简单,免维护。

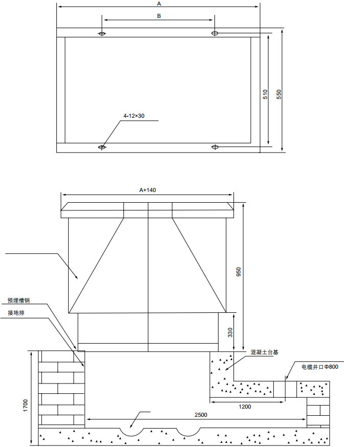
欧式电缆分支箱地基图

 

 

 

分支数

2

3

4

5

6

7

A

580

700

820

940

1060

1-180

B

180

300

420

540

660

780

 

总部
浙江温州柳市中泰科技园
热线:0577-62785777  热线:18957777082 传真:0577-62785777
分部
黑龙江大庆万宝工业园区
电话:0459-6778555  传真:0459-6778666 邮箱:cnzt@auntink.com
扫一扫 关注我
中泰科技公众号
Copyright © 中泰科技 All Rights Reserved.    浙ICP备49433669号-1
熊猫体育